Multi-Use Commercial Property for Sale – Krum TX
- $574,900
Multi-Use Commercial Property for Sale – Krum TX
- $574,900
Overview
- Commercial In USA
- 411 m²
Description
Advantages Of Buying Properties Through AGI
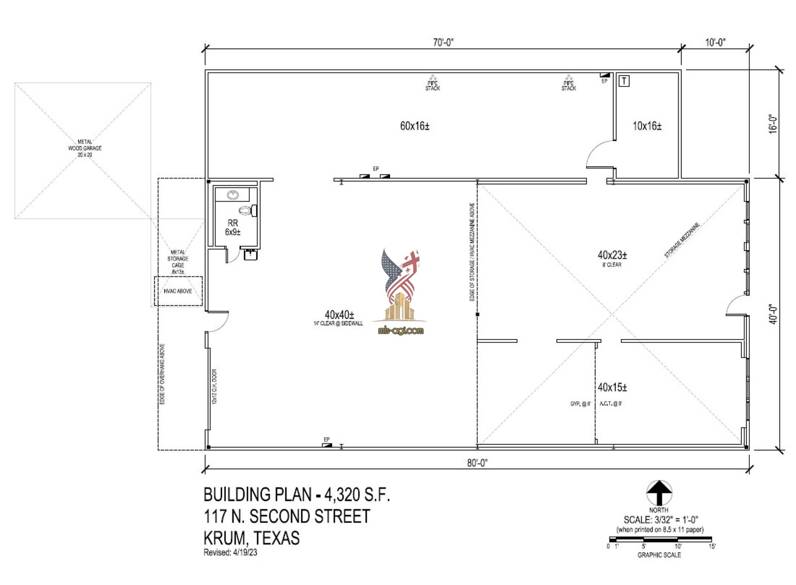
For Lease $4800 Per month (ASIS) or For Sale $599,000, 4,424sf (tax appraiser measurements) of Electrical is plentiful in this building, as it was a former machine tooling building. Drive in the front, store delivery vehicles inside, and drive out the back. This building has a foam insulation that keeps it cool during the Texas summer heat. It has HVAC and a mezzanine for storage. Start your business dreams here in Krum. Don’t be shy! Don’t have an agent? No problem, call me! 940-243-1065 ext. 706 ask for Michael. We are here to do deals. If you have a business idea and are qualified to run this business. We might partner with you, but it must be a well-presented business proposal. If you don’t like this space, I will find another one for you.
Businesses that are needed here.
Coffee Shop
small engine/ ATV/ Motorcycle repair
laundromat
T-Shirt printing (Maybe)
taco shop
Beer Barn (will need some approvals)
Autoparts
Parking Lot for the City
Hair Salon
Nail Salon
BBQ
Restaurant
Art Studio
Service Providers: HVAC, Electricians, Plumbers, Construction Companies.
Investment Highlights
For Lease $4800 Per Month and For Sale $599,000
Address
Open on Google Maps- Address: 117 N 2nd St, Krum, TX 76249
- Country: USA
Details
Updated on July 28, 2025 at 3:39 pm- Property ID HZ32762
- Price $574,900
- Property Size 411 m²
- Land Area 700.2 m²
- Year Built 1970
- Property Type Commercial In USA
- Property Status For Sale, New Listing
- Price per m² 1,399
- Floors 1
Mortgage Calculator
- Down Payment
- Loan Amount
- Monthly Mortgage Payment






